Dva etažirana stana s dvorištem i terasom – Dubrava
Čeminačka , Donja Dubrava, Zagreb




















Tip nekretnine
Apartment
Podtip
Apartment in a house
Ukupna površina
206.9 m²
Neto površina
140.49 m²
Grad
Zagreb
Županija
Grad Zagreb
Šira lokacija
Donja Dubrava
Naselje
Donja Dubrava
Broj soba
5
Spavaće sobe
5
Kupaonica s WC
2
Kat
1
Ukupno katova
2
Etaža
Two-story
Energetski razred
Certificate in progress
Orijentacija
North, South

Agent za nekretnine
Mario Karamatić
Kontakt
+385 91 131 1990Informacije
Prodaju se dva etažirana stana u kući s ukupno tri stambene jedinice, smještena u mirnom i ugodnom okruženju u Dubravi.
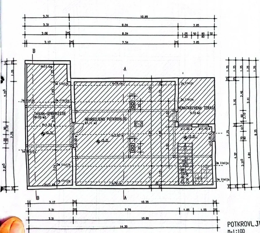
Stan E-2 nalazi se na prvom katu i u potkrovlju, ukupne neto površine 102,06 m².
Dodatnim uređenjem potkrovlja moguće je dobiti još približno 40 m² stambenog prostora.
Potkrovlje ima izlaz na terasu, a stanu pripada i dio dvorišta definiran u elaboratu. Stan ima vlastiti, zaseban ulaz.
Stan E-3 nalazi se na prvom katu, površine 38,43 m². Također mu pripada dio dvorišta te ima zaseban ulaz.
Oba stana imaju vlastite kupaonice i kuhinje te zahtijevaju adaptaciju, što pruža mogućnost uređenja prema vlastitim željama ili investicijskom planu.
Ukupna površina oba stana iznosi 140,49 m², a prodaju se isključivo zajedno.
Kuća posjeduje građevinsku dozvolu i rješenje o izvedenom stanju.
Lokacija nekretnine nudi odličnu povezanost i dostupnost svih sadržaja – svega nekoliko minuta hoda dijeli vas od glavne prometnice i javnog prijevoza, dok se u neposrednoj blizini nalaze trgovine, vrtići, škole i ostali sadržaji potrebni za svakodnevni život.
Agencijska naknada iznosi 2%+PDV.
Mario Karamatić
Saras Real Estate




















Tip nekretnine
Apartment
Podtip
Apartment in a house
Ukupna površina
206.9 m²
Neto površina
140.49 m²
Grad
Zagreb
Županija
Grad Zagreb
Šira lokacija
Donja Dubrava
Naselje
Donja Dubrava
Broj soba
5
Spavaće sobe
5
Kupaonica s WC
2
Kat
1
Ukupno katova
2
Etaža
Two-story
Energetski razred
Certificate in progress
Orijentacija
North, South

Agent za nekretnine
Mario Karamatić
Kontakt
+385 91 131 1990