Moderni 3-sobni stan s vrtom i 2 parkinga – Gornji Stupnik, novogradnja 108,64 m²






Tip nekretnine
Apartment
Podtip
Apartment in a building
Ukupna površina
108.64 m²
Grad
Stupnik
Županija
Zagrebačka županija
Šira lokacija
Gornji Stupnik
Spavaće sobe
3
Godina izgradnje
2025

Agent za nekretnine
Mario Karamatić
Kontakt
+385 91 131 1990Informacije
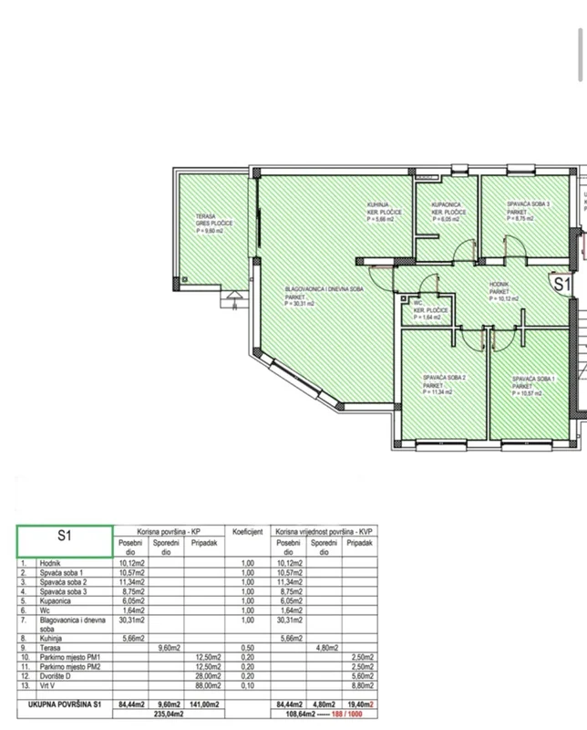
Prodaje se prostran i moderno dizajniran stan u novogradnji u Gornjem Stupniku, ukupne površine 108,64 m².
Zatvoreni dio stana iznosi 84,44 m², dok dodatnih 24,2 m² čine dva privatna parkirna mjesta, terasa, dvorište i vrt, što ovoj nekretnini daje poseban komfor i prednost.
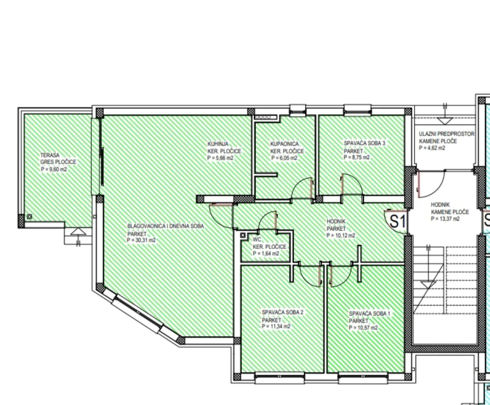
Stan se sastoji od:
ulaznog hodnika
3 spavaće sobe
kupaonice
zasebnog WC-a
prostranog open-space dnevnog boravka s kuhinjom i blagovaonicom
terase s izlazom na dvorište i vrt
Planirano useljenje: siječanj 2027.
Lokacija – mir, privatnost i odlična povezanost
Gornji Stupnik je poznat kao mirno i ugodno obiteljsko naselje s izvrsnom povezanošću prema Zagrebu.
U neposrednoj blizini nalaze se trgovine, vrtić, škola, javni prijevoz te brza cesta koja omogućuje lagan i brz dolazak do svih bitnih sadržaja u gradu. Idealno za obitelji i sve one koji žele kombinaciju privatnosti i praktičnosti.
Za više informacija i termin razgledavanja, slobodno nas kontaktirajte – stojimo na raspolaganju!
Agencijska naknada iznosi 2%.
Mario Karamatić
Prodajni savjetnik
Saras Real Estate
Kontakt: 091 1311 990






Tip nekretnine
Apartment
Podtip
Apartment in a building
Ukupna površina
108.64 m²
Grad
Stupnik
Županija
Zagrebačka županija
Šira lokacija
Gornji Stupnik
Spavaće sobe
3
Godina izgradnje
2025

Agent za nekretnine
Mario Karamatić
Kontakt
+385 91 131 1990