Prostran 4-soban stan s loggiom i garažom – Vrapče, Bolnička cesta
Bolnička , Vrapče, Zagreb
















Tip nekretnine
Apartment
Podtip
Apartment in a building
Ukupna površina
78 m²
Grad
Zagreb
Županija
Grad Zagreb
Šira lokacija
Podsused - Vrapče
Naselje
Vrapče
Broj soba
4
Spavaće sobe
3
Kupaonica s WC
1
Broj WC-a
1
Kat
5
Ukupno katova
6
Etaža
One-story
Energetski razred
Certificate in progress
Godina izgradnje
2009
Godina adaptacije
2008

Agent za nekretnine
Mario Karamatić
Kontakt
+385 91 131 1990Informacije
PRODAJE SE: Moderan 4-soban stan s loggiom i spremištem – Vrapče (Bolnička cesta)
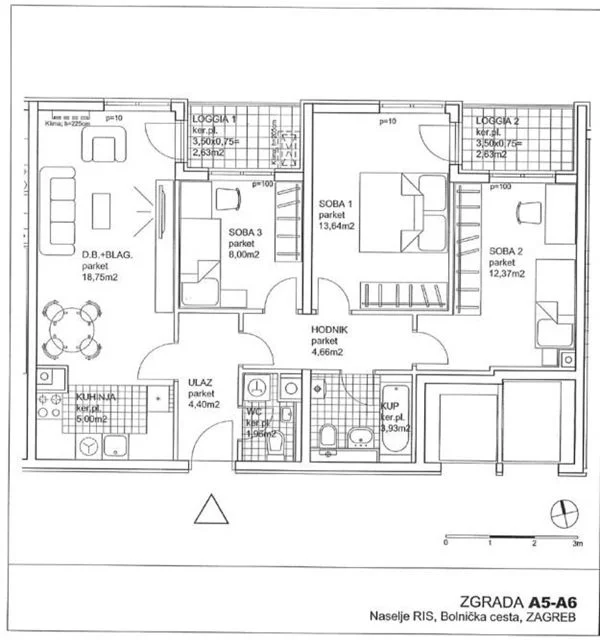
Na prodaju je prostran i funkcionalno raspoređen stan površine 78 m², smješten na 3. katu kvalitetne stambene zgrade s ukupno 6 katova, opremljene s dva lifta i video nadzorom, što osigurava dodatnu sigurnost i udobnost stanovanja.
Stan se sastoji od:
ulaznog hodnika
dnevnog boravka
kuhinje s blagovaonicom
tri spavaće sobe
kupaonice
dodatnog WC-a
loggie
Izuzetno funkcionalan tlocrt omogućuje ugodan obiteljski život, ali i odličnu priliku za investiciju.
Dodatne značajke:
ALU-PVC vanjska stolarija
protuprovalna i protupožarna ulazna vrata
video nadzor zgrade
Uz stan dolazi i spremište površine 2,15 m² na etaži -1, idealno za odlaganje stvari.
Garaža (opcionalno):
Postoji mogućnost kupnje garaže na etaži -1, s kapacitetom za parkiranje dva vozila. Garaža se obračunava po koeficijentu 0,75, što znači povoljniji izračun u kvadraturi.
Prednost lokacije – Vrapče (Bolnička cesta)
Stan se nalazi u jednoj od najtraženijih lokacija zapadnog dijela Zagreba – Vrapče, u mirnoj i uređenoj Bolničkoj cesti, idealnoj za obiteljski život, ali i kao investicija za dugoročni najam.
U neposrednoj blizini nalaze se:
bolnica Sveti Duh (brza dostupnost zdravstvenih usluga)
dječji vrtići i osnovne škole
trgovine, pekarnice i ljekarne
trgovački centri i ugostiteljski objekti
javni prijevoz (bus i željeznička postaja Vrapče) s brzom vezom prema centru grada
Velika prednost ove lokacije je odlična prometna povezanost – brzi izlaz na Ilicu i Zagrebačku aveniju omogućuje jednostavan pristup centru grada i svim važnijim dijelovima Zagreba.
Ova lokacija nudi savršen balans između mirnog okruženja i blizine urbanih sadržaja, što stan čini idealnim izborom za obitelji, ali i kao sigurnu dugoročnu investiciju.
Za više informacija i razgled stana slobodno nas kontaktirajte!
Jakov Markić
Prodajni savjetnik
Saras Real Estate
Kontakt: 091 738 1549
















Tip nekretnine
Apartment
Podtip
Apartment in a building
Ukupna površina
78 m²
Grad
Zagreb
Županija
Grad Zagreb
Šira lokacija
Podsused - Vrapče
Naselje
Vrapče
Broj soba
4
Spavaće sobe
3
Kupaonica s WC
1
Broj WC-a
1
Kat
5
Ukupno katova
6
Etaža
One-story
Energetski razred
Certificate in progress
Godina izgradnje
2009
Godina adaptacije
2008

Agent za nekretnine
Mario Karamatić
Kontakt
+385 91 131 1990